至美术馆坐落在深圳宝安区全至科技创新园二号楼内。作为联系园区内不同公共空间的媒介,至美术馆也连接着人与人之间工作和生活的关系,营造具有人文社区的工作场所。至美术馆除了展厅功能,还包含了多功能厅和工作坊。通过展览、培训、讲座和论坛等方式,至美术馆以此来推动艺术文化与公众生活的联系,建立多元艺术与多元文化的交流平台。     
  
与大部分美术馆不同,至美术馆不是一个独立的建筑,它是由一栋普通混凝土厂房的局部两层空间改造而成的。在九百多平米的厂房空间里,我们通过空间节奏的变化、自然光影的引入和材料肌理的运用,为至美术馆创造丰富和有趣的观展体验。    
  
美术馆分为两层,一层的主要功能是门厅及多功能厅,二层是展厅和工作坊。美术馆外立面的钢板利用氟碳透明漆保留了天然的不匀称纹理,这种真实而自然的不匀称呼应了美术馆的艺术气质。徐步走进馆内,随着美术馆外立面界面由竖向隔栅转换成喇叭形的玻璃视窗,狭长的入口前厅从秩序空间过渡成观景空间。前厅过后便是两层通高的中庭空间,狭长空间与高挑空间的转换,让人感觉豁然开朗。
  
中庭空间的楼梯与坡道联系着一层与二层。行走在楼梯与坡道像是一段“艺术熏陶之旅”,让观众在观展之前,先感受与体验建筑空间的美学与趣味。楼梯与坡道这两种形式的更替使观众可以在行走中体验不同的节奏和速度。黑色的楼梯、白色的墙以及木纹肌理的混凝土墙面共同创造出素雅纯净的意境。与常规梁式楼梯不同,楼梯的踏步与侧板形成完整的钢板楼梯结构体系,楼梯的形式也因此呈现出结构美学。中庭的二楼一侧利用大面积的落地玻璃将更多的自然光线引入通高空间,观展者在步行而上时空间会逐渐明亮。而当步行到二层时,回头一望,观展者便欣赏到窗外绿意悠悠的小叶榄仁景色。曲折的路径、丰富的材质、变化的光线,让中庭空间的行走变成一种有趣的游走体验,而这个过程中,人们不时地相望、凝视、跟随、打趣等也建立起人与人之间的联系。
  
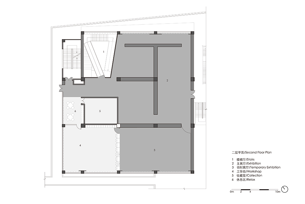
二层展厅根据柱子的位置和展览功能需求划分为几个大小尺寸不同的展厅。这些展厅并不全是封闭不透光的室内空间,一些靠外墙的展厅大胆地保留了玻璃幕墙,一方面我们可以通过遮光帘灵活地实现布展的各种暗房间的要求,另一方面除了让室外自然景色融进展览空间,艺术家也可利用自然光线进行空间布展,为观展者提供不一样的观展体验。   
  
Zhi Art Museum is situated in Building 2 of Quanzhi Technology Innovation Park, Baoan District, Shenzhen. Interlinking different public spaces within the park, Zhi Art Museum connects people in the aspects of work and life and contributes to a working place with a cultural community. In addition to the function of exhibition hall, it also has a multi-function hall and workshops. By means of exhibitions, trainings, lectures and forums, it brings tight connection between art culture and people’s life, acting as a communication platform for multi-arts and multi-cultures.
 
Different from most art galleries, Zhi Art Museum is not an independent building. Instead, its two-floor space was transformed from a part of an originally concrete plant. Through change of spatial rhythm, natural lighting and application of material textures in the more than 900 square meters plant space, Zhi Art Museum brings visitors a colorful and interesting exhibition experience.
 
The museum is composed of two floors. The first floor has a hallway and a multi-functional hall, while the second floor functions as exhibition halls and workshops. Façade of the museum is decorated with fluorocarbon lacquer coated steel plate with natural uneven textures which echoes artistic style of the museum. Walking inside, as façade of the museum changes from the grille to a horn-shaped glass window, the narrow and long hallway will guide you from ordered space to viewing space. After passing through the hallway, visitors will go into an atrium with two-floor-height ceiling. The transition from a narrow and long space into a tall and high space suddenly brings visitors a broad vision.
 
The stairs and slopes in the atrium connect the first floor and the second floor. Walking on the stairs and slopes, visitors enjoy a journey of art while they sense aesthetics and interest of the architectural space before the exhibition. Alternation between stairways and slopes makes people feel different rhythms and paces during walking. Black staircases, white walls and wood-grain concrete walls create a simple but elegant and pure artistic conception. Different from conventional beam stairway, the stair steps and sideboards form a complete structural system of steel-plate stair with structural aesthetics. On the second floor of the atrium, a large area of French window lets more natural lights come into the high-ceiling space. Visitors find the space brighter and brighter when they walk upward in the atrium. Coming to the second floor and looking backward, visitors may also see the green terminalia mantaly outside of the window. With tortuous path, plentiful materials and changing light, walking in the atrium become an interesting tour; Meanwhile, people interact with each other by gazing, following, making fun from time to time, which is a way to develop the relationship between the audience.
 
The exhibition hall on the second floor is divided into several halls of different sizes according to the location of the pillars and the functions of the halls. The halls are not all closed and opaque indoor spaces. Some exhibition halls adjacent to exterior have boldly preserved the glass curtain wall. On one hand, these exhibition halls can be met the requirement for dark rooms by using the window blinds. On the other hand, it not only brings outdoor natural scenery into the exhibition space, but also artists could take advantage of natural lights to arrange the exhibition, providing a different viewing experience for visitors.
项目名称:至美术馆
功能:公共文化建筑
项目地址:深圳市宝安区全至科技创新园
业主:深圳市佳领域实业有限公司
项目设计&完成年份:2016/2018
建筑面积:1090㎡
主持建筑师:曾冠生
建筑设计团队:罗文国 麦梓韵 吴炳福 | 王志明 邹映华
室内设计团队:罗文国 麦梓韵 吴炳福 | 王志明 邹映华
摄影:张超
主要材料:金刚砂、拉板网、木模混凝土、白橡木、钢板
Project name: Zhi Art Museum
Category: Public Cultural building
Project location: Quanzhi Technology Innovation Park, Bao an District, Shenzhen
Client: Shenzhen Jialingyu Industrial Limited Company
Design year & Completion Year:2016/2018
Area: 1090 m²
Lead Architect: Guansheng Zeng
Architecture Design: Wenguo Luo, Ziyun Mai, Bingfu Wu | Zhiming Wang, Yinghua Zou
Interior Design: Wenguo Luo, Ziyun Mai, Bingfu Wu | Zhiming Wang, Yinghua Zou
Photo credits: Chao Zhang
Material: Emery Floor, Dragnet Aluminum Plate, Wood Formwork Concrete, Oak wood, Steel